| Предыдущая тема :: Следующая тема |
| Автор |
Сообщение |
Aleksei
Зарегистрирован: 16.10.2014 Сообщения: 10 Откуда: г. Москва
|
Добавлено: Ср Фев 04, 2015 13:27 Заголовок сообщения: Маркировка узла |
|
|
Добрый день. Возможно ли добавить маркировку узла в соответствии с ГОСТ Р 21.1101-2013?
Последний раз редактировалось: Aleksei (Ср Фев 04, 2015 18:14), всего редактировалось 2 раз(а) |
|
| Вернуться к началу |
|
 |
VetalBY Site Admin
Зарегистрирован: 22.03.2007 Сообщения: 1910
|
Добавлено: Ср Фев 04, 2015 15:45 Заголовок сообщения: Re: Маркировка узла |
|
|
| Aleksei писал(а): | | Добрый день. Возможно ли добавить маркировку узла в соответствии с ГОСТ Р 21.1101-2013? Во вложении привел выдержку из ГОСТа и свое пожелание наглядно там обозначено |
Так и напишите в поле номер узла 8(10). Или я не понял вопроса?
|
|
| Вернуться к началу |
|
 |
Aleksei
Зарегистрирован: 16.10.2014 Сообщения: 10 Откуда: г. Москва
|
Добавлено: Ср Фев 04, 2015 16:04 Заголовок сообщения: Re: Маркировка узла |
|
|
| VetalBY писал(а): | | Aleksei писал(а): | | Добрый день. Возможно ли добавить маркировку узла в соответствии с ГОСТ Р 21.1101-2013? Во вложении привел выдержку из ГОСТа и свое пожелание наглядно там обозначено |
Так и напишите в поле номер узла 8(10). Или я не понял вопроса? |
Все верно. это называется заработался. Спасибо.
|
|
| Вернуться к началу |
|
 |
Nikolai
Зарегистрирован: 04.02.2015 Сообщения: 1
|
Добавлено: Чт Фев 05, 2015 9:11 Заголовок сообщения: |
|
|
Здравствуйте
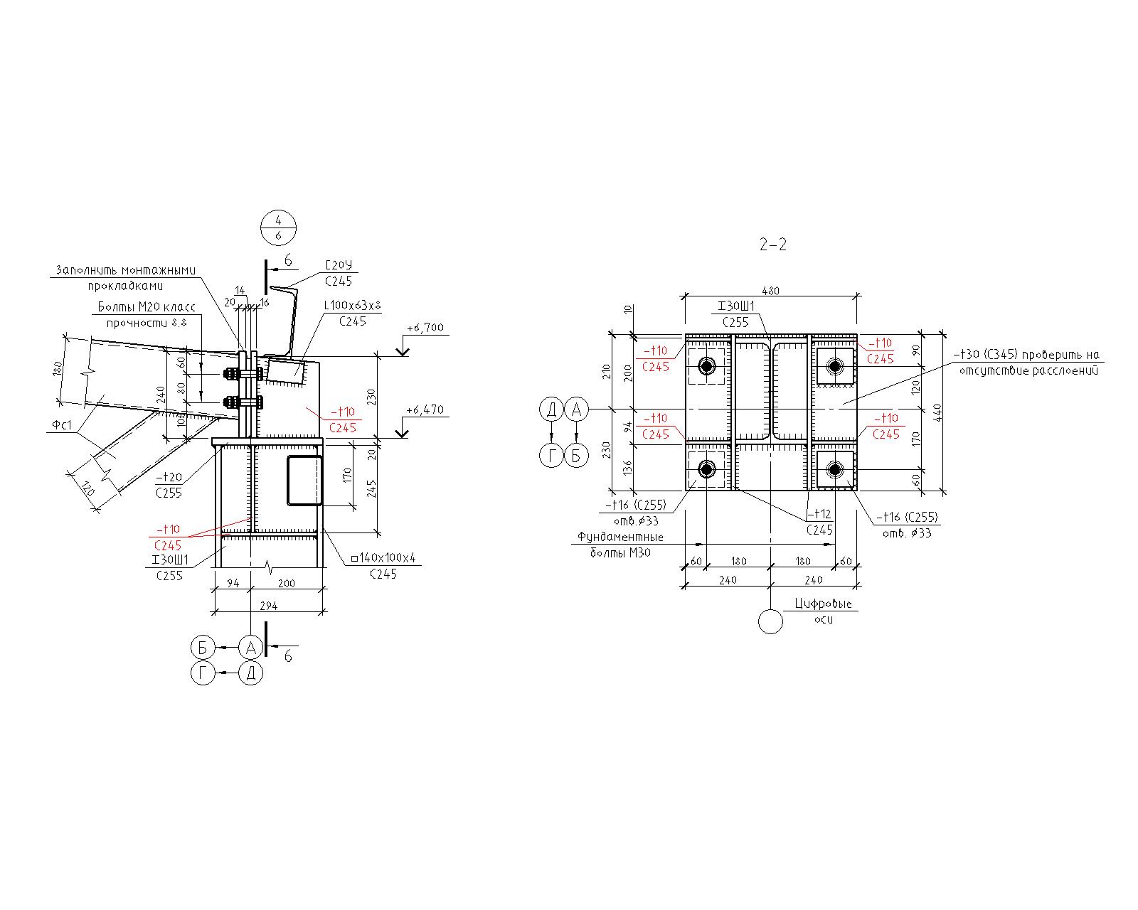
видел в другой теме вопрос по возможности привязке к одному номеру позиции разных свойств и видел ответ разработчиков
хотел бы показать пример в котором это очень помогло бы (я бы сделал окно с галочкой которая бы совмещала свойства позиции или разьеденяла) при разработке чертежей КМ в колонне может быть несколько позиций но с разными размерами (отмечено красным цветом)
и еще несколько нюансов: при задании в выносках какой либо сетки масса сетки в спецификации простовляется с точкой хотя в настройках стоит запятая, при сборе расхода стали через спецификацию фундаментные болты и различные гайки заносит в закладные изделия а если собирать ведомость расхода стали через отдельную кнопку(которая предназначена для получения технической спецификации) там фундаментные болты забрасывает в арматурные изделия так же если пользоваться вторым вариантом для получения ведомости расхода стали не проставляет значек диаметра у арматуры
| Description: |
|
| Filesize: |
137.34 KB |
| Viewed: |
23687 Time(s) |

|
|
|
| Вернуться к началу |
|
 |
marcis
Зарегистрирован: 25.04.2012 Сообщения: 506
|
Добавлено: Чт Фев 05, 2015 11:49 Заголовок сообщения: |
|
|
При установке позиции -t10 надо поставить галочку "м.п"(м2) и в окне "Количество" записать площадь листа в м.кв. (Для КМ прокат листовой берется из папки Сортаменты/Каталог профилей). Так можно сделать много одинаковых позиций с разными значениями.
По поводу точки в массе сеток я уже писал, и точно помню, что Виталий исправил. Сейчас проверил с последним обновлением - опять появилась точка...
Чтобы болты относились к закладным изделиям, данные с чертежа нужно выбирать не из строк спецификации, а из позиций.
А чтобы у арматуры проставлялись значки диаметров, надо в файл tsm.ini дописать ГОСТ на арматуру, которую вы используете.
|
|
| Вернуться к началу |
|
 |
VetalBY Site Admin
Зарегистрирован: 22.03.2007 Сообщения: 1910
|
Добавлено: Пт Фев 06, 2015 11:48 Заголовок сообщения: |
|
|
| marcis писал(а): | | При установке позиции -t10 надо поставить галочку "м.п"(м2) и в окне "Количество" записать площадь листа в м.кв. (Для КМ прокат листовой берется из папки Сортаменты/Каталог профилей). |
Также при условии использования Сортаменты/Каталог профилей в поле ДЛИНА можно указать размеры в мм, например 300х200 (х - русское или английское)
Остальное буду проверять.
|
|
| Вернуться к началу |
|
 |
sam_n
Зарегистрирован: 25.10.2012 Сообщения: 71
|
Добавлено: Ср Апр 01, 2015 9:34 Заголовок сообщения: |
|
|
Виталий, давно задавал вопрос о контекстной возможности включения изделий в "Редактор базы данных изделий".
http://vetcad.ru/vetcad_forum/viewtopic.php?p=3297&highlight=#3297
Не подскажете, есть ли продвижения в этом направлении.
И если нет, то возможно ли как-то самому добраться до этой базы из лиспа или vba?
|
|
| Вернуться к началу |
|
 |
VetalBY Site Admin
Зарегистрирован: 22.03.2007 Сообщения: 1910
|
Добавлено: Ср Апр 01, 2015 11:52 Заголовок сообщения: |
|
|
А что конкретно нужно?
|
|
| Вернуться к началу |
|
 |
sam_n
Зарегистрирован: 25.10.2012 Сообщения: 71
|
Добавлено: Ср Апр 01, 2015 16:58 Заголовок сообщения: |
|
|
| VetalBY писал(а): |
А что конкретно нужно? |
На примере.
На вба формирую спецификацию для 30 сеток. Теперь необходимо вручную добавить их в базу изделий (для дальнейшей работы).
Хочется автоматизировать этот процесс.
|
|
| Вернуться к началу |
|
 |
VetalBY Site Admin
Зарегистрирован: 22.03.2007 Сообщения: 1910
|
Добавлено: Чт Апр 02, 2015 14:43 Заголовок сообщения: |
|
|
| sam_n писал(а): |
На примере.
На вба формирую спецификацию для 30 сеток. Теперь необходимо вручную добавить их в базу изделий (для дальнейшей работы).
Хочется автоматизировать этот процесс. |
Формат файла текстовый, с ним можно делать всё что угодно, только сохранять формат. Если интересует только добавление изделий, могу вывести такую команду в LISP.
|
|
| Вернуться к началу |
|
 |
sam_n
Зарегистрирован: 25.10.2012 Сообщения: 71
|
Добавлено: Чт Апр 02, 2015 15:18 Заголовок сообщения: |
|
|
| VetalBY писал(а): | | sam_n писал(а): |
На примере.
На вба формирую спецификацию для 30 сеток. Теперь необходимо вручную добавить их в базу изделий (для дальнейшей работы).
Хочется автоматизировать этот процесс. |
Формат файла текстовый, с ним можно делать всё что угодно, только сохранять формат. Если интересует только добавление изделий, могу вывести такую команду в LISP. |
А... я и забыл, что можно во внешнем файле хранить изделия. Записываю в самом чертеже всегда. Отсюда и вопрос возник.
А можно в таком случае лисп на добавление изделий в файл чертежа?
|
|
| Вернуться к началу |
|
 |
VetalBY Site Admin
Зарегистрирован: 22.03.2007 Сообщения: 1910
|
Добавлено: Ср Апр 15, 2015 12:30 Заголовок сообщения: |
|
|
| sam_n писал(а): |
А... я и забыл, что можно во внешнем файле хранить изделия. Записываю в самом чертеже всегда. Отсюда и вопрос возник.
А можно в таком случае лисп на добавление изделий в файл чертежа? |
Извиняюсь за задержку. К сожалению на лиспе такой функции нет, только на C++.
Но информация хранится в словаре, из лиспа до неё добраться можно с помощью такой функции
| Код: | (defun getlocalvetrec ( / MyXrecord MyDict)
(if (setq MyDict (dictsearch (namedobjdict) "VETCAD_SPEC-VET")) ; если найден мой словарь
(setq MyXrecord (dictsearch (cdr (assoc -1 MyDict)) "vet-vet")) ; моя запись
)
MyXrecord
) |
Попробуйте средствами VetCAD++ добавить изделие в файл и потом прочитать запись в словаре. Формат записи прост, фактически туда записываются строки из файла vet группами. Я думаю разобраться и добавить туда свои записи будет не сложно.
|
|
| Вернуться к началу |
|
 |
sam_n
Зарегистрирован: 25.10.2012 Сообщения: 71
|
Добавлено: Ср Апр 22, 2015 22:42 Заголовок сообщения: |
|
|
| VetalBY писал(а): | | sam_n писал(а): |
А... я и забыл, что можно во внешнем файле хранить изделия. Записываю в самом чертеже всегда. Отсюда и вопрос возник.
А можно в таком случае лисп на добавление изделий в файл чертежа? |
Извиняюсь за задержку. К сожалению на лиспе такой функции нет, только на C++.
Но информация хранится в словаре, из лиспа до неё добраться можно с помощью такой функции
| Код: | (defun getlocalvetrec ( / MyXrecord MyDict)
(if (setq MyDict (dictsearch (namedobjdict) "VETCAD_SPEC-VET")) ; если найден мой словарь
(setq MyXrecord (dictsearch (cdr (assoc -1 MyDict)) "vet-vet")) ; моя запись
)
MyXrecord
) |
Попробуйте средствами VetCAD++ добавить изделие в файл и потом прочитать запись в словаре. Формат записи прост, фактически туда записываются строки из файла vet группами. Я думаю разобраться и добавить туда свои записи будет не сложно. |
Да отлично просто! Спасибо большое!!!
|
|
| Вернуться к началу |
|
 |
Александр561
Зарегистрирован: 13.03.2012 Сообщения: 19
|
Добавлено: Пт Июл 31, 2015 3:58 Заголовок сообщения: |
|
|
Изменения версии 3.11 VetCAD++
5. Добавлена возможность дублирования автосохраненных файлов с целью их сохранения после закрытия AutoCAD (см. команду sos).
----------------------------
Добрый день, хочу предложить чтобы не вводить каждый раз в командную строку команду "sos", прикрепить к панели Vetcad++:Главная кнопку "SOS". Имею привычку часто чистить чертежи и пользоваться этой командой.
|
|
| Вернуться к началу |
|
 |
Sash1981
Зарегистрирован: 28.05.2011 Сообщения: 398 Откуда: Ростов-на-Дону
|
Добавлено: Чт Авг 06, 2015 9:21 Заголовок сообщения: Разбитие Технички |
|
|
| Виталий добрый день, скажите пожалуйста, трудно реализуемо сделать чтобы можно было большую (длинную спецификацию) разбивать например на две и получать уже две вычерченные спецификациии, а может и три чтобы удобно разместить допустим на два три листа.
|
|
| Вернуться к началу |
|
 |
|